Main Content

1036 NE Cobblestone Ct. Ct, Prineville, OR 97754 (MLS # 220212429)

No property photo available
Price $424,900
Status Active
Beds 4
Baths 3 Baths
Home size 1,792 sqft
Lot Size 8,712 sqft
Days on Market 1
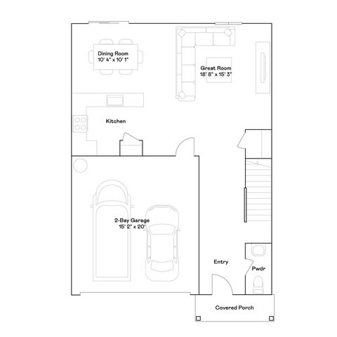
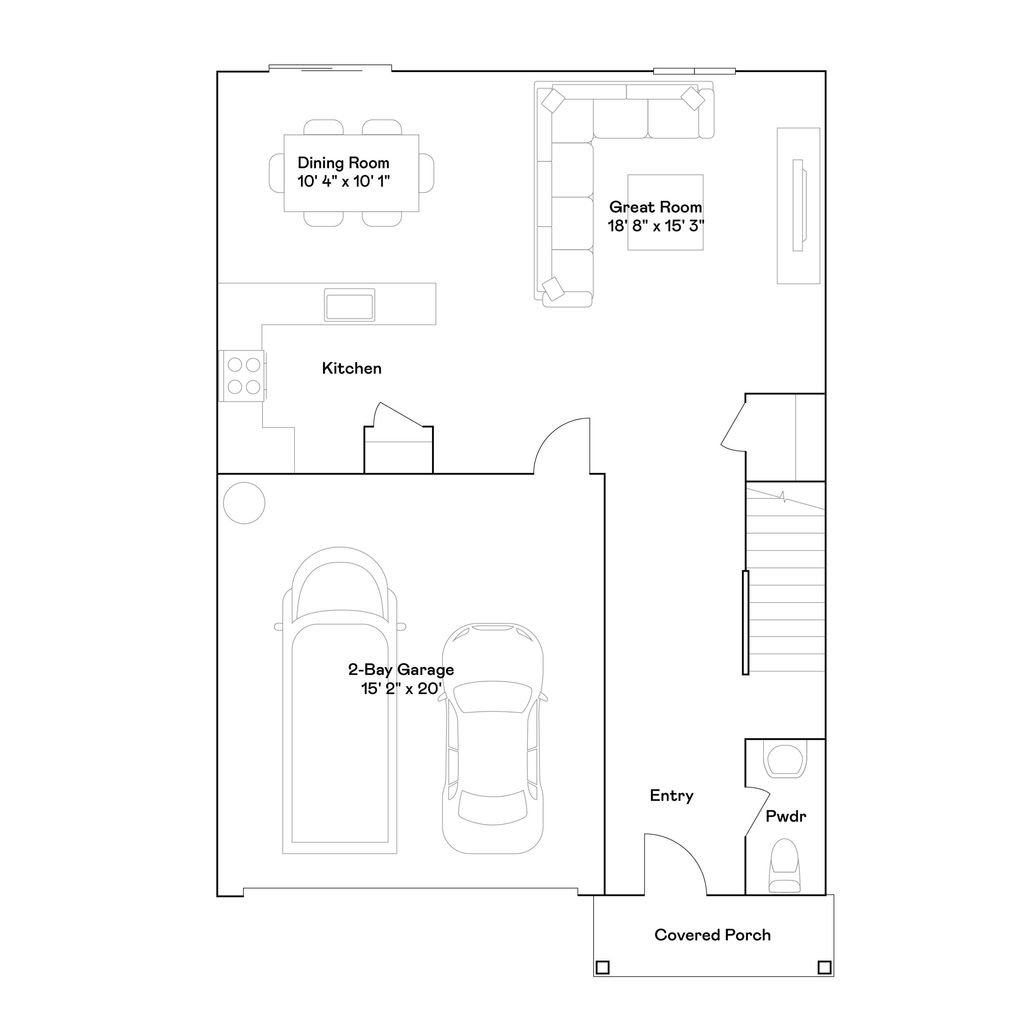
Introducing Lennar Homes at Parkview Estates. This Home sits on a large 12,549 sqft lot. Welcome to the ''Dorothy'' floorplan, the largest in the community. The first level of this new two-story home features an open floorplan that seamlessly combines a stylish kitchen, a formal dining room, and Great Room. Upstairs, discover four spacious bedrooms, including the owner's suite nestled into a private corner at the back of the home. This suite offers a walk-in closet and an en-suite bathroom. The Kitchen presents quartz countertops and sleek shaker-style cabinets. Enjoy the beauty of a xeriscape front yard with a drip irrigation system included. Home also includes Central Air, Refrigerator, Washer & Dryer, and Blinds. Renderings and sample photos are artist conceptions only. Photos are of similar, or model home so features and finishes may vary. Taxes not yet assessed. Estimated to be completed March 2026. Homesite #2.
Property Type(s): Single Family
Last Updated 11/26/2025 Tract Parkview Estates
Year Built 2026 Garage Spaces 2.0
County Crook

SCHOOLS

Elementary School Barnes Butte Elem
Jr. High School Crook County Middle
High School Crook County High

Additional Details

AIR Central Air
AIR CONDITIONING Yes
APPLIANCES Dishwasher, Disposal, Dryer, Range, Range Hood, Refrigerator, Tankless Water Heater, Washer
CONSTRUCTION Frame
FOUNDATION None
GARAGE Yes
HEAT Forced Air, Natural Gas
INTERIOR Open Floorplan, Pantry, Walk-In Closet(s)
LOT 8712 sq ft
PARKING Attached, Driveway
SEWER Public Sewer
STORIES 2
STYLE Northwest, Other
SUBDIVISION Parkview Estates
TAXES 572.87
VIEW Yes
VIEW DESCRIPTION Park/Greenbelt, Territorial
WATER Public
ZONING R2; General Residential
Listed with Lennar Sales Corp

©2025 Oregon Datashare (KCAR | MLSCO | SOMLS). All rights reserved. The data relating to real estate for sale on this web site comes in part from the Internet Data Exchange Program of the Oregon Datashare. Real estate listings held by IDX Brokerage firms other than Elite Real Estate Company are marked with the Internet Data Exchange logo or the Internet Data Exchange thumbnail logo and detailed information about them includes the name of the listing Brokers. Information provided is for consumers' personal, non-commercial use and may not be used for any purpose other than to identify prospective properties the viewer may be interested in purchasing. The consumer will not copy, retransmit nor redistribute any of the content from this website. Information provided is deemed reliable, but not guaranteed. Listing courtesy of Elite Real Estate Company. Data last updated: 11/26/25 9:08 PM PST.

This IDX solution is (c) Diverse Solutions 2025.

Location

 

Contact us about this Property

 / 
We respect your online privacy and will never spam you. By submitting this form with your telephone number you are consenting for Chamese Christianson to contact you even if your name is on a Federal or State "Do not call List".

Email a Friend

08Connect With Legacy Realty

We'd Love to hear from you